本公司專業生產d40伸縮縫、d60伸縮縫、d80伸縮縫,價格優惠,歡迎咨詢!
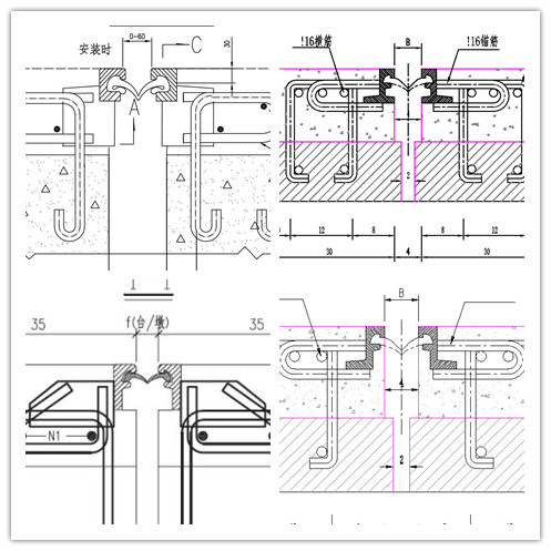
D型橋梁伸縮縫具體分為 C型, E型, Z型, L型, F型等橋梁伸縮縫
橋梁伸縮縫型號全稱分:
GQF-C型橋梁伸縮縫、
GQF-E型橋梁伸縮縫、
GQF-L型橋梁伸縮縫、
GQF-F型橋梁伸縮縫、
GQF-MZL型橋梁伸縮縫,等
如用戶安裝有困難,我公司可派技術人員現場指導, 根據實際情況,需方可與河北衡潤工程材料有限公司技術服務部聯系。
河北衡潤工程材料有限公司
地 址:河北省衡水市桃城區
座 機:0318-2639500
手 機:15632850601
郵 箱:15632850601@163.com
網 址:www.sjzsanhuan.com
郵 編:053000


